IV.3.2.3. Dimensionnement Quantitatif et Estimatif
En s'appuyant sur la mercuriale en vigueur et les prix
pratiqués localement pour les intrants disponibles dans les environs du
site du projet, on a pu dimensionner et produire un devis global pour la
réalisation du système. Il est consigné dans le tableau en
annexeN° 6. Le coût global de réalisation de l'ouvrage est de
46.811.848 FCFA amortissable en quatre années entières.
IV.3.3.
Modélisation du système optimisé de gestion des effluents
de l'abattoir de Saint-Cloud.
La modélisation est le processus de
création d'une représentation mathématique
tridimensionnelle d'un objet, une forme ou un système à l'aide de
logiciels spécialisés. Celui-ci permet dans de nombreux secteurs
comme l'architecture et l'ingénierie en général de
visualiser, simuler ou créer des structures physiques avant leur
construction, garantissant ainsi une maîtrise des coûts et une
limitation des erreurs. Dans le cadre de l'étude, il a été
choisi le logiciel d'architecture Archicad 26 (dernière version). Ce
logiciel créé par la société hongroise Graphisoft
se présente aujourd'hui comme le leader mondial de la conception
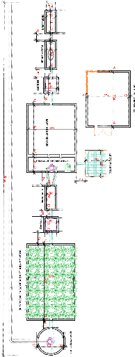
architecturale et le dessin technique. Les figures 7, 8, 9 et 10 illustreront
un plan côté et de rendus à l'issu d'un long travail de
conception et de dimensionnement du système proposé.

Figure 7 : Plan côté général du
système optimisé.

Figure 8 : Rendu 3D illustrant l'ensemble du
système raccordé au bâtiment de l'abattoir (Vue
aérienne)

Figure 9 : Rendu 3D illustrant l'ensemble du
système à l'arrière de l'abattoir (Vue de dessus)


Figure 10 : Rendus 3D illustrant le lit de séchage
et une partie du MAES + Réservoir de stockage
|